Remus Residences
Trachoni, Limassol
Introducing Remus Residences—two exclusive single-family homes nestled in Limassol’s vibrant, newly developed Trachoni area. Just a 5-minute drive from Limassol Mall, the City of Dreams, and many more the prestigious developments in the surrounding area, these homes offer unmatched convenience and a luxurious lifestyle in one of the city’s most sought-after neighborhoods.
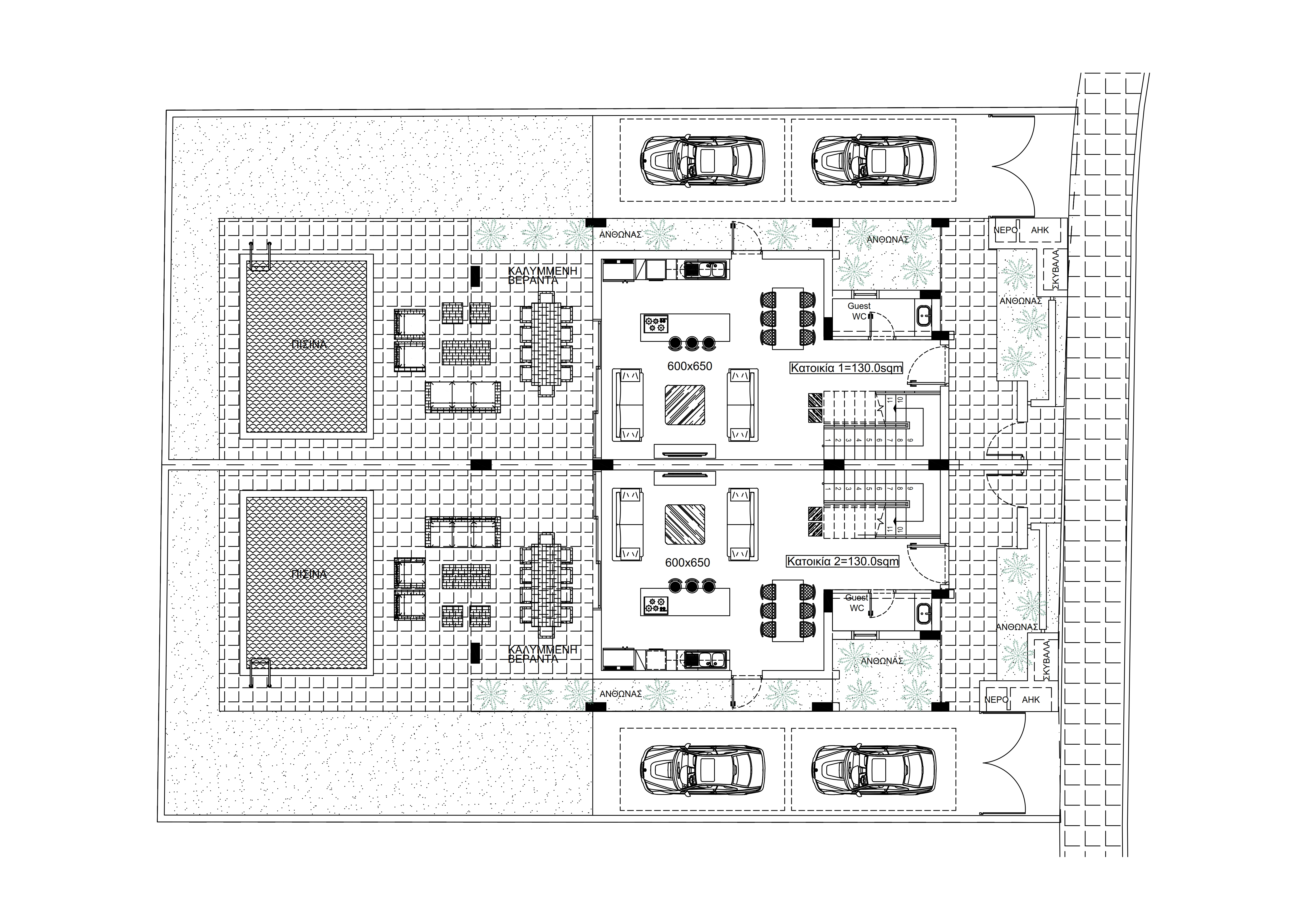
Each home at Remus Residences is designed with elegance and functionality in mind. The open-plan layout on the main floor boasts a spacious living room, a contemporary kitchen with premium finishes, and a stylish dining area perfect for gatherings. The layout encourages seamless movement throughout, making it ideal for both relaxation and entertaining. A guest bathroom on the ground floor adds convenience for visitors.
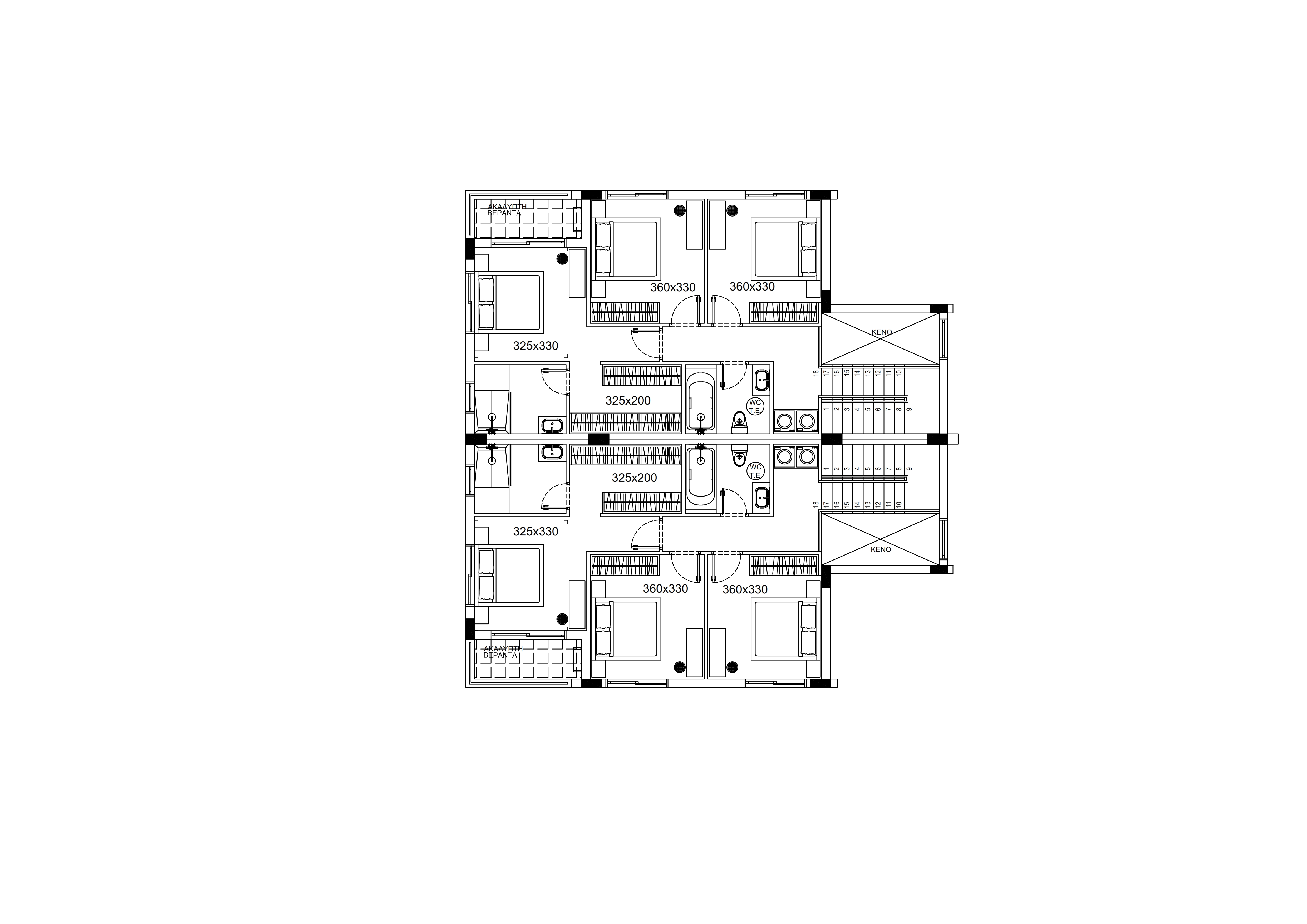
The upper floor features a luxurious master suite with an en-suite bathroom and a large wardrobe for a touch of opulence. Two additional well-sized bedrooms share a beautifully appointed bathroom, ensuring privacy and comfort for every family member.
Both homes come with private, beautifully landscaped gardens and inviting swimming pools, creating a peaceful oasis where residents can relax, entertain, and enjoy the Mediterranean climate.
Remus Residences offer a unique opportunity to live in a rapidly growing neighborhood close to Limassol’s top entertainment and lifestyle attractions. Embrace the perfect blend of modern luxury, privacy, and location at Remus Residences—your ideal home awaits in Limassol’s thriving Trachoni area.
Each home at Remus Residences is designed with elegance and functionality in mind. The open-plan layout on the main floor boasts a spacious living room, a contemporary kitchen with premium finishes, and a stylish dining area perfect for gatherings. The layout encourages seamless movement throughout, making it ideal for both relaxation and entertaining. A guest bathroom on the ground floor adds convenience for visitors.
The upper floor features a luxurious master suite with an en-suite bathroom and a large wardrobe for a touch of opulence. Two additional well-sized bedrooms share a beautifully appointed bathroom, ensuring privacy and comfort for every family member.
Both homes come with private, beautifully landscaped gardens and inviting swimming pools, creating a peaceful oasis where residents can relax, entertain, and enjoy the Mediterranean climate.
Remus Residences offer a unique opportunity to live in a rapidly growing neighborhood close to Limassol’s top entertainment and lifestyle attractions. Embrace the perfect blend of modern luxury, privacy, and location at Remus Residences—your ideal home awaits in Limassol’s thriving Trachoni area.
Property Details:
| Bedrooms | Bathrooms | Covered Internal Area (sqm) | Covered Verandas (sqm) | Plot Size (sqm) | Swimming Pool (sqm) | Parking Spaces | Floors | Status |
|---|---|---|---|---|---|---|---|---|
| 3 | 3 | 130 | 33 | 275 | 21 | 2 | 2 | Available |
| 3 | 3 | 130 | 33 | 275 | 21 | 2 | 2 | Available |




















